L’opération consiste à : modifier la devanture dans le cadre d’un changement d’exploitant, pour une activité commerciale (restauration sur place vers une restauration à emporter) ; en rez-de-chaussée d’un ensemble immobilier.
Le projet prévoit de revoir les accès et quelques adaptations pour permettre d’accueillir tous les publics.
Travail en collaboration avec K’milia, pour l’assistance administrative.
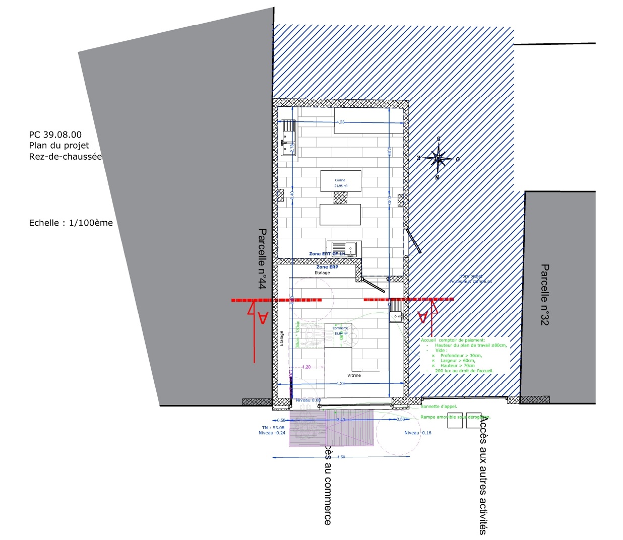
Pour répondre aux exigences, il a été envisagé 3 dossiers administratifs : AP (Enseigne), AT (accessibilité et sécurité) et DP (travaux sur la devanture en zone ABF).
Les aménagements pour le restaurant à emporter, comprennent des travaux d’aménagement et d’embellissement : cloisonnement, ameublement, menuiseries… .
Surface de l’ERP est de 18,04m² (l’espace de vente à emporter) et de l’ERT est de 21,95m² (Cuisine).






Réléver votre intérieur
Copyright © 2024. Tous droits réservés. Site réalisé avec ❤️ par Clé de Fa.